Key for viewing the 3D tank diagram

Top
Bottom
Front
Back
Left
Right

Diagram preview notes:

  • All measurements entered are to the center of the fitting. If you choose 1”, the fitting will be placed as close to the edge as possible.

  • Colored dots on the tank are only for visual reference and may not appear as the measurement you select.

  • Fittings will be installed by the inch reference you provide.

Ronco
SKU/Product #: B182

B182 - 42 Gallon Polyethylene Tank

Tanks are exempt from any free freight promotions. Ships within 20 business days
$412.40
$515.50
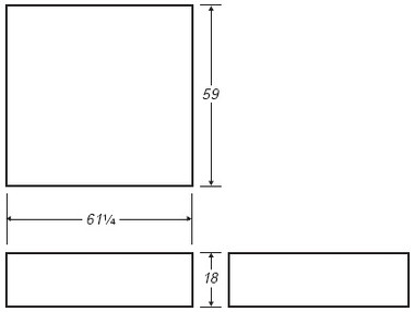
Tank Length
Tank Width & Height

Shipping: Calculated at Checkout

Product Description

Polyethylene Tank for Sewage or Water
  • All Tanks Start Blank (add 3 fittings at no charge)
  • There is no specified Height, Width or Length. Tanks can lay in the configuration that matches your needs.
  • Please follow the instructions to customize what size fittings you need and where you need them placed.


Our tanks are 3/8 thick and are roto-molded. This means they have no seams - creating a long lasting, durable means of storing your waste or water.


 
Pricing Basics


Standard tank prices include (3) free fittings:  1/2" -1.5" FNPT Spin-Weld fitting (friction weld). Typically all you need is an inlet, a discharge and a vent fitting.

Fittings that are not included in the standard tank price:

  • Any additional fittings after the (3) that are included - $5.00
  • 3" Cleanout with Cap - $21.00
  • Diptube discharge kit - $52.80 -A custom length Diptube is created by adhering a PVC pipe to a MPT x Slip fitting that threads into an 1-1/2" FNPT spin-weld fitting on the tank. The pipe is measured to sit approx 1/2" from the bottom of the tank, making it a very efficient way of evacuating your tank. Both a straight and a 90 degree hose adapter option is included with this kit (not glued). *Use PVC Primer and Cement to finish*

Freight is not factored into the standard tank price! Shipping options will be provided upon checkout.

If you have questions about fitting placements or need general information CLICK HERE and be taken to our Q&A

Additional information:

Material

Polytheylene

Wall Thickness

3/8"

Preperation

Roto-Molded

Coast Guard

APPROVED

Usability

Waste / Water

Max Temp Allowed

130 deg F

Manufacturer

Ronco

Fittings

Customizable



RONCO MARINE TANKS should always be stored out of direct sunlight and protected from freezing. Prior to installation, tanks should be at room temperature for a minimum of six (6) hours. The tank must be installed on a flat or contour matched surface, be clean and totally supported in all planes with 1/2" - 3/4" marine plywood or equivalent.

Install tubing and fittings so that there are no points of stress on the tank. use elbows to prevent partial bending or collapsing of the tubing when a change in direction is required.

Plastic tank connections are designed to seal dry. Compounds such as sealants, pipe dopes, greases, petroleum jellies, glues or adhesives are not to be used. To avoid damage to seal fittings, do not apply excessive force. Do not exceed 1/4 turn after hand tightening.

Do not install metal fittings in the plastic tank as the materials are not compatible.

Should you desire to test the potable water tank or water system for leaks, fill with water and check visually.